
This is one of the better preserved temples dating to the Ming dynasty (1368–1644). It was constructed in 1443 as a family shrine then later converted to a Buddhist temple. During the Ming and Qing (1644–1911) dynasties it underwent repairs but its popularity declined after the mid-Qing dynasty and it fell into ruin. It was renovated in the 1950s. The surviving structures and their decoration are mostly from the Ming dynasty and are a valuable source for the study of palatial-style architecture from that time. It was listed as a National Cultural Heritage Site in 1961.
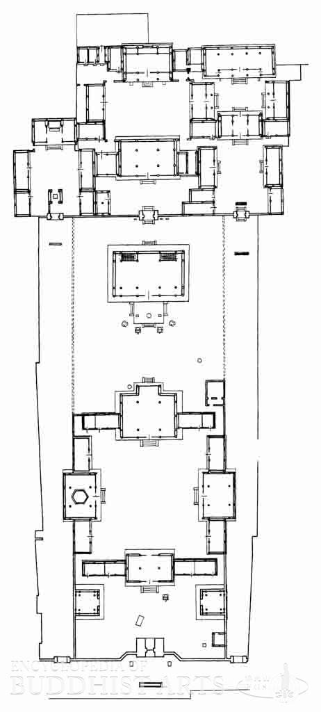
The temple faces south and consists of five courtyards. Along the central axis, there are the screen wall, main temple gate, Heavenly King Hall, Zhihua Hall, Tathagata Hall, Great Compassion Hall, and Ten Thousand Dharma Hall. On the sides are the bell and drum towers, Great Wisdom Hall and the sutra repository. The roofs of all the main buildings are covered with black glazed tiles, which is rarely seen among Chinese Buddhist temples. The three-by-two bay Great Wisdom Hall has a single-eave hip-and-gable roof. There is a portico at the back of the hall with a curved roof. At the center of the ceiling there used to be an intricately carved plafond. It has significant artistic and architectural value and is now preserved in the Philadelphia Museum of Art, USA.
The two-story Tathagata Hall is the largest building in the temple. It has a double-eave hip roof. The upper story is three bays wide with lattice-work spread across the Buddha niches. The lower story is five bays wide and houses a statue of a seated Buddha. Originally there was a delicately carved octagonal plafond above the central bay. The plafond is now preserved in the Nelson-Atkins Museum of Art, USA. An octagonal revolving sutra case is located in the center of the sutra repository. It is carved from wood and is a fine example of Buddhist craftsmanship.
For more details, go to the Encyclopedia of Buddhist Arts: Architecture T-Z, page 1403.