
The construction of the temple started in 571 during the Northern Qi dynasty but it was later reduced to ruins by war. The temple was reconstructed during the Song dynasty (960–1279). Further reconstruction took place during the Ming (1368–1644) and Qing (1644–1911) dynasties. Most of the surviving architecture, sculptures, and murals date back to the Ming dynasty. It was listed as a National Cultural Heritage Site in 1988.
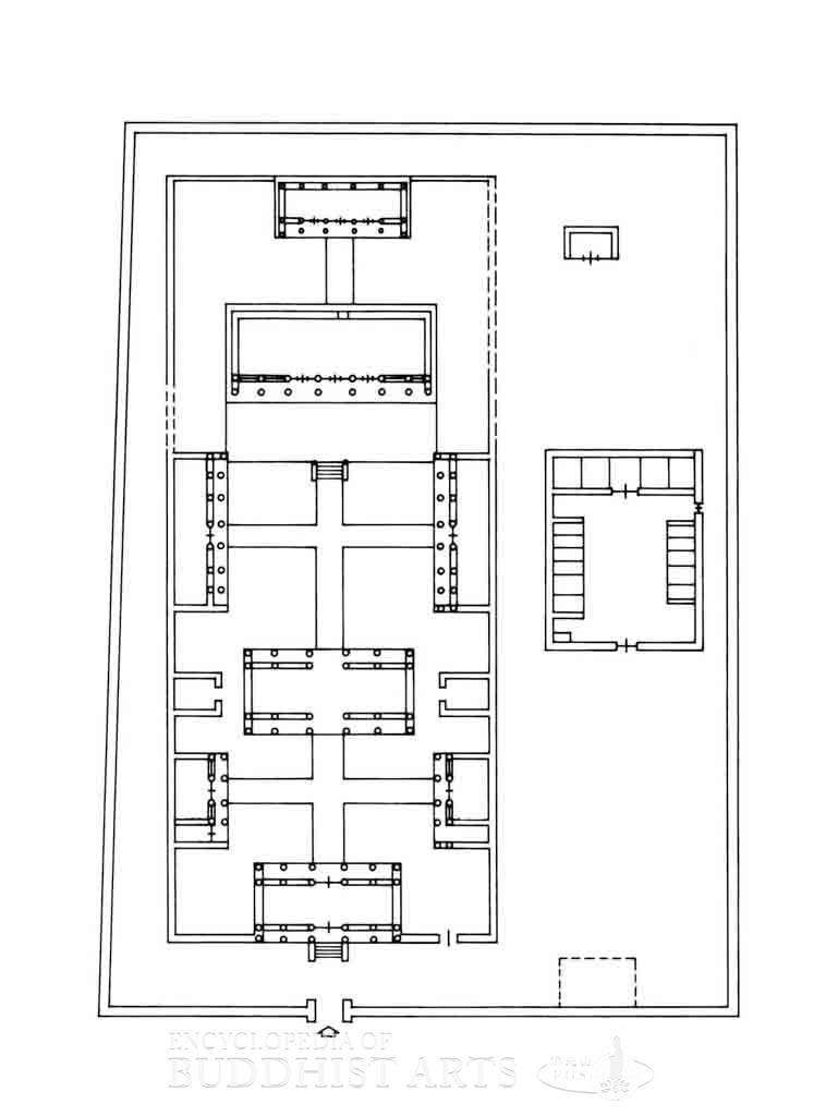
The temple faces south and is built upon a 3 m high platform of rammed earth and is surrounded by a boundary wall. The whole complex is 123.7 m long and 120 m wide, with the buildings occupying 3,711 sq m. The temple is separated into east and west sections. The west section consists of three courtyards, and along the central axis there are the Heavenly King Hall, Sakyamuni Hall, Great Hero Hall, and the Vidyarajni Hall. Side buildings in the first courtyard include the Ksitigarbha Hall and Arhat Hall. The bell and drum towers are located on either side of the Sakyamuni Hall. The central courtyard is spacious with the Bodhisattva Hall and Thousand Buddha Hall located on each side. The east section used to contain the assembly hall and meditation hall; however, currently it is used as a school.
The Heavenly King Hall has a single-eave overhanging gable roof. It is five bays wide and six rafters deep. Porticos extend from the front and the back of the hall with statues of the Four Dharma protectors placed in the front portico. Maitreya Bodhisattva is enshrined in the center of the building, flanked by Brahma and Sakra. Heavenly Kings stand on both sides of the doors along the south wall, while the Eight Great Bodhisattvas line the north, east, and west walls. The five-by-three bay Sakyamuni Hall has a single-eave overhanging gable roof. The exterior of the building is surrounded by a veranda. A statue of Sakyamuni Buddha is enshrined within the hall together with Manjusri and Samanthabhadra Bodhisattvas. Along the walls there are reliefs depicting scenes from the Life of the Buddha. On the back of the partition wall there is a statue of Avalokitesvara Bodhisattva on a Lotus Petal.
The five-by-four bay Great Hero Hall has a single-eave hip-and-gable roof. A portico at the front is intricately carved lattice windows. The hall contains the three Buddhas flanked by Manjusri and Samantabhadra Bodhisattvas and two attendants. The main statue within the Thousand Buddha Hall is the Water-Moon Avalokitesvara, attended by Yaksa and Skanda. The Bodhisattva Hall contains a Twenty-Six Armed Avalokitesvara. There are over 400 hanging sculptures of Bodhisattvas surrounding the hall. A statue of Avalokitesvara is enshrined in front of the back (west) wall in the Arhat Hall, while the north, south, and front (east) walls have the Sixteen Arhats seated in wooden niches. Ksitigarbha Bodhisattva is enshrined within the Ksitigarbha Hall, with the Ten Kings of Hell and judges on the left and right, as well as on the south and north walls. Ming dynasty murals can be found in the Great Hero Hall, the Thousand Buddha Hall, and the Bodhisattva Hall. The temple also houses a stele from the Song dynasty as well as a Ming dynasty bell.
The temple has a total of 2,052 individual pieces of sculpture, such as freestanding statues, low and high reliefs, and many types of decorative engravings. Those in good condition amount to 1,566 pieces and they represent some of the finest Ming dynasty sculptures.
For more details, go to the Encyclopedia of Buddhist Arts: Architecture M-S, page 1007.