
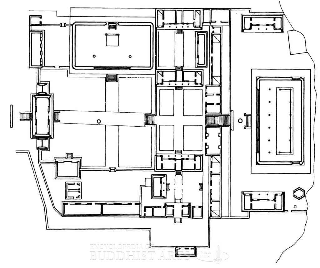
The temple was built during the rule of Emperor Xiaowen (reigned 471–499) of the Northern Wei dynasty. During the persecution of Buddhism in 845 all the buildings were destroyed except for the Patriarch Pagoda and a few funerary pagodas. In 857 the temple was rebuilt from donations by Ning Gongyu, a female devotee. The temple was renovated in 1137 during the Jin dynasty, as well as subsequent dynasties, but saw a decline in the late Qing dynasty (1644–1911). There are three important surviving structures: the Patriarch Pagoda from the Northern Dynasties (386–581), the East Hall constructed in 857 during the Tang dynasty, and the Manjusri Hall which was built in 1137 during the Jin dynasty. The temple was listed as a National Cultural Heritage Site in 1961.
The temple was built along mountainous terrain and faces east. Along the central axis there are the Heavenly King Hall, which is the main temple gate, and the East Hall, which is the main hall. Side buildings include the Manjusri Hall, Sangharama Hall, Ten Thousand Kindness Hall, and subsidiary buildings. There are sutra pillars found in front of the East Hall and side buildings constructed during the Tang dynasty (618–907). The Patriarch Pagoda is located on the southern slope leading to the East Hall, while the funerary pagodas are situated behind the temple along the eastern slope, as well as in a cave to the northwest of the temple. The funerary pagodas date back to the Tang and Jin (1115–1234) dynasties.
The Manjusri Hall faces south and is the only Jin dynasty building on Wutaishan. The seven-by-four bay hall has a single-eave overhanging gable roof. A colorful glazed ornament created in 1351 during the Yuan dynasty decorates the center of the ridge. Even though Manjusri Hall is a side building, its scale is equivalent to that of the main hall, which is rarely seen among Buddhist temples. Inside the roof frame is exposed and there are only four columns, which is the distinguishing feature of this building. The absence or small number of columns was often seen in architecture of the Liao (907–1125) and Jin dynasties. A 4 m high Manjusri Bodhisattva is enshrined inside, flanked by attendant Bodhisattvas and Bodhisattvas making offerings. All these statues are from the Jin dynasty. The surrounding walls are decorated with images of the remaining 248 of the Five Hundred Arhats painted during the Ming dynasty (1368–1644). They represent the best Arhat images from the Ming dynasty.
For more details, go to the Encyclopedia of Buddhist Arts: Architecture T-Z, page 1284.